Skip to main content

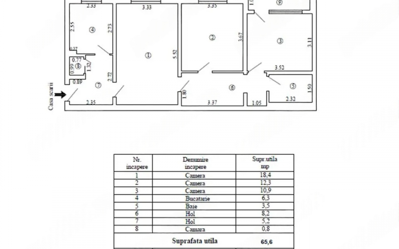
Apartament cu 3 camere Micro 16 la etajul 1/4

ID:17109
82 000 Euro
Galati, Micro 16
Suprafata: 65m2
Etaj: 1/4
Camere: 3 camere
Compartimentare: Semidecomandat
Centrala: Da
Tamplarie PVC: Da
Izolatie: Da

Apartament cu 3 camere, Semidecomandat, in zona Micro 16, situat la etajul 1/4, cu suprafata de 65 de mp2, centrala, termopan, izolatie.