Skip to main content

Spatiu comercial cu 6 camere Micro 39 A la etajul parter/1

ID:13307
4 000 000 Euro
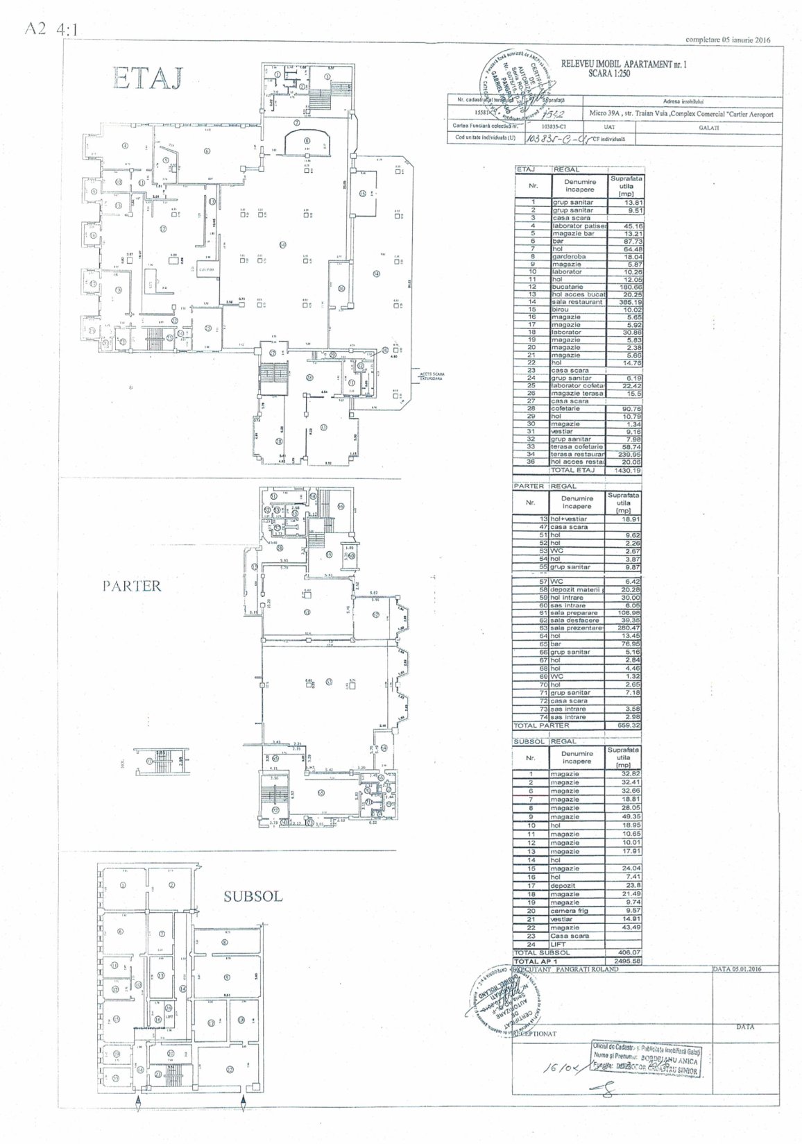
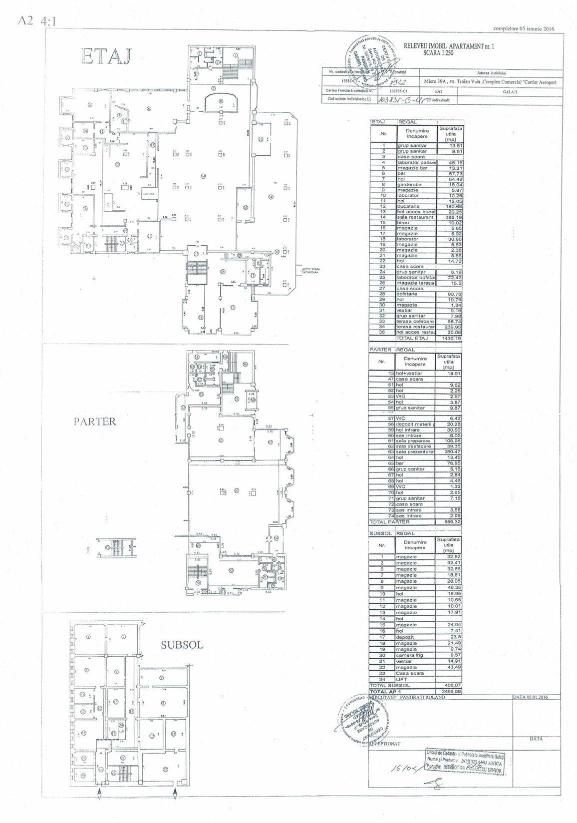
Galati, Micro 39 A
Suprafata: 3700m2
Etaj: parter/1
Camere: 6 camere
Compartimentare: Decomandat
Centrala: Da
Tamplarie PVC: Da
Izolatie: Nu

Practic Imobiliare va ofera spre vanzare Spatiu Comercial situat Galati pe B-dul Traian Vuia – cladirea ”Print si Cersetor” Proprietatea este construita pe un teren de 1542 mp, are o suprafata construita de 3700 mp. Cladirea este dispusa pe subsol, parter si etaj. Imobilul este racordat la toate utilitatile si are rampe de aprovizionare si locuri de parcare.